The Intruder

The Intruder is a collaborative exhibition by a group of interdisciplinary artists and designers, working under the name ‘3.24 Studio’. Under the brief of the BKK Design Week 2021 festival, ‘what do you want to see in public spaces?’, an immersive exhibition was proposed to challenge the politics behind the formation of public spaces through intrusion.

Exhibition & Installation Design.

The Inhabitant

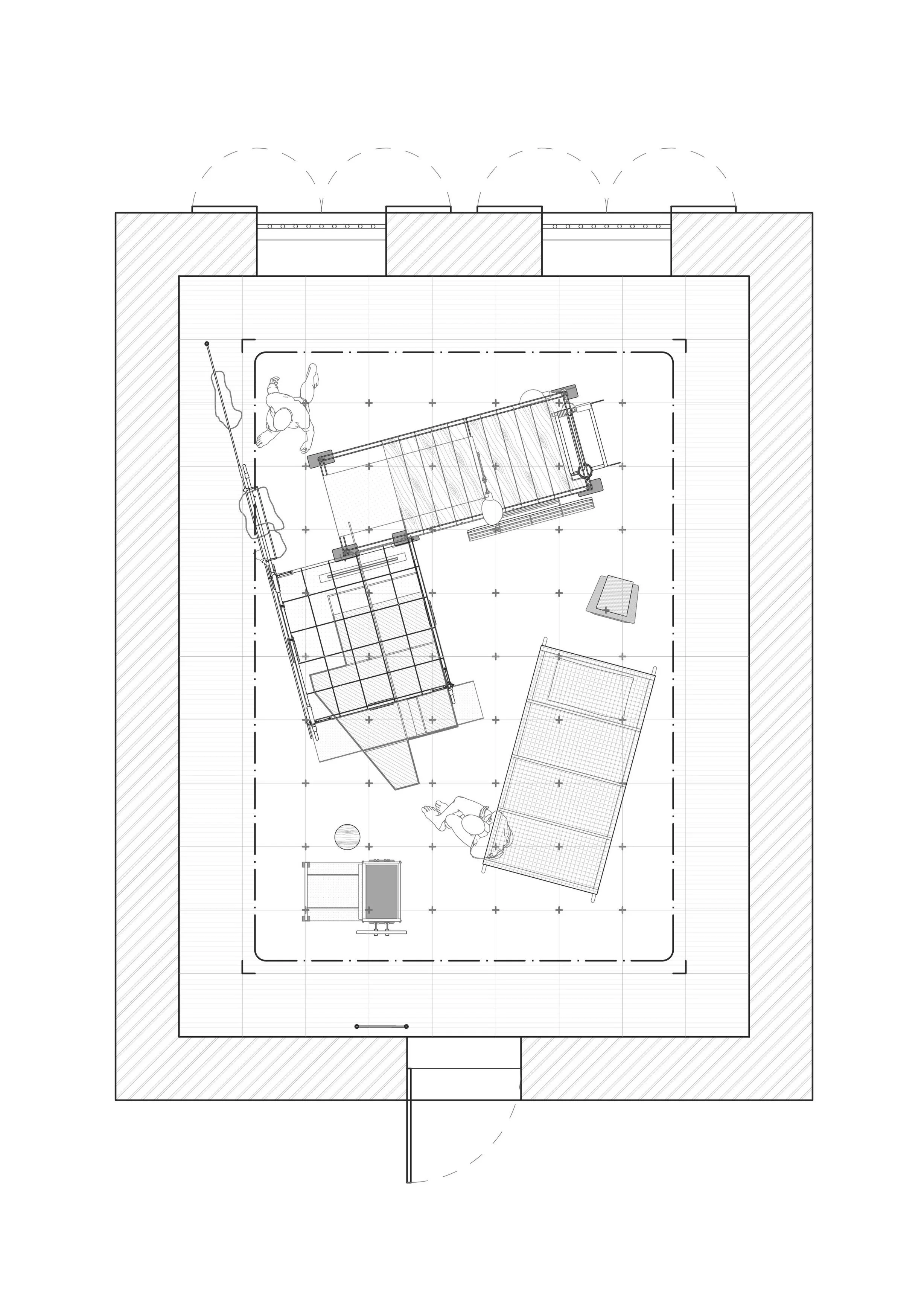
The exhibition took place within a venerable 200-year-old house nestled in one of Talad Noi's most quaint neighborhoods. The master bedroom, serving as the venue for the Inhabitant performance, stood as the sole area within the residence facilitating a direct link to the bustling thoroughfare of Vanich 2.

Site - Talad Noi

Talad Noi is a porous and immersive community. Although the area is an extension of Sam Pheng, one of the largest merchandise districts in Bangkok’s Chinatown, it still distinctively displays unique remnants from the past, reflective of the constant transformation of its identities. The undefinable boundaries between the public and private spaces that were constantly blurred throughout history has now become one of its defining characteristics. Talad Noi bestows the feeling of intrusion upon its visitors and outsiders trespassing the neighborhood.

Conceptual Schemes

“Talad Noi's distinctive character is forged through the recurring rituals of domesticity, reflecting an eclectic aesthetic born from the intimate sprawl of daily life. Within this room, two strangers are invited to interact with a curated set and each other, guided by a new thematic anchor word introduced daily—a word emblematic of their individual perceptions of home.

The set itself serves as a blank slate, devoid of preconceived influences, offering a canvas for the two participants to coalesce their notions of home over the nine-day duration of the exhibition. Each passing day witnesses the metamorphosis of this set into a shared domicile for two individuals, thereby transforming the room into a microcosmic laboratory exploring the dynamics of personal space negotiation.

The intricate interplay of personal expressions, cooperation, conflict, and adaptation, sheds light onto the evolutionary process by which collective culture emerges and evolves through individual agency.”


Fabrication

Considering both craftsmanship and fabrication feasibility, the design team concurrently developed the design while planning transportation strategies. Each component of the set was attentively crafted by hand, working with limited tools and machinery.

In response to the challenge of site accessibility, comprehensive logistic and assembling strategies were thoughtfully crafted. This involved the utilisation of an as-built digital model, integrating the versatility of 3D-printed connections with the practicality and modular nature of standard industrial steel components. This ensured a seamless transition from off-site prefabrication to on-site installation.

To read more about the details of the set design, please visit the “Make” section of our website.

Designers: Supawut Teerawatanachai + Tharadol Sangmitr

Performers: Bhumibhat Thavornsiri, Natanin Rachapradit

Area: 30 sqm

Year: 2021

Photographs: Supawut Teerawatanachai

City: Bangkok

Country: Thailand

Previous
Previous

UPI HQ

Next
Next

Breaking Seawalls